Warszawa , ul. Posag 7 Panien

Mieszkanie , 43,19 m2

720 000,00 PLN

Dane nieruchomości:

Numer oferty: 34964512318
Powierzchnia: 43,19 m2
Liczba pokoi: 2
Piętro 7 /7
Rok budowy: 2017
Balkon: 1
Cena za m2: 16 670,53 PLN
Cena: 720 000,00 PLN

Opis nieruchomości:

43 m kw, 2 pokoje, balkon garaż / URSUS
Doskonała lokalizacja: ulica Posag 7 Panien w modnej części Ursusa. Mieszkanie znajduje się na 7 piętrze w nowoczesnym budynku, na zamkniętym terenie, z własnym placem zabaw i miejscami relaksu, okna wychodzą na spokojną część.

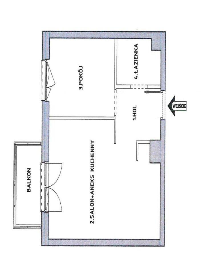
Bardzo dobry standard wykończenia: mieszkanie jest wyposażone we wszystko czego trzeba, aby czuć się komfortowo. Dodatkowo jest klimatyzacja. Przestrzenna łazienka (3,5 mkw) z gustowną glazurą i pralką , 2 pokoje z metrażem 10 i 25 mkw oraz balkon ok. 4 mkw . W przedpokoju znajduje się zabudowana szafa.
Mieszkanie może być również doskonałym rozwiązaniem inwestycyjnym pod najem (2 osobne pokoje).

Ekspozycja: Południowy-wschód zapewnia dużo światła w mieszkaniu.

Dodatkowe udogodnienia: Do mieszkania przynależy miejsce w garażu podziemnym, płatane dodatkowo 40 000 zł.

Mieszkanie składa się z:
- salon z aneksem kuchennym 25 mkw
- pokój 10 mkw
- łazienka 3,5 mkw
- przedpokój 4 mkw
- balkon 4 mkw

Zapraszam do kontaktu, aby umówić się na wizytę w tej modnej, nowoczesnej lokalizacji w Warszawie.


Lokalizacja:

Skontaktuj się z agentem :
Joanna Kępska-Trzcińska

Telefon : 601 36 36 39

joanna@joannahouse.com.pl