Warszawa Śródmieście Powiśle

Mieszkanie , 85,01 m2

5 100 000,00 PLN

Dane nieruchomości:

Numer oferty: 34964542607
Powierzchnia: 85,01 m2
Liczba pokoi: 3
Piętro 7 /9
Rok budowy: 2017
Balkon: 1
Cena za m2: 59 992,94 PLN
Cena: 5 100 000,00 PLN

Opis nieruchomości:

Na sprzedaż 3 pokojowy apartament na Powiślu z prywatnym podgrzewanym basenem na ponad stumetrowym tarasie z pięknym widokiem na warszawskie drapacze chmur!
W ofercie sprzedaży posiadamy również drugi trzypokojowy apartament o powierzchni 51,44 m2, do którego przynależy taras tuż obok - istnieje szansa połączenia lokali za pomocą np. ogrodu zimowego.

(ENGLISH DESCRIPTION BELOW)

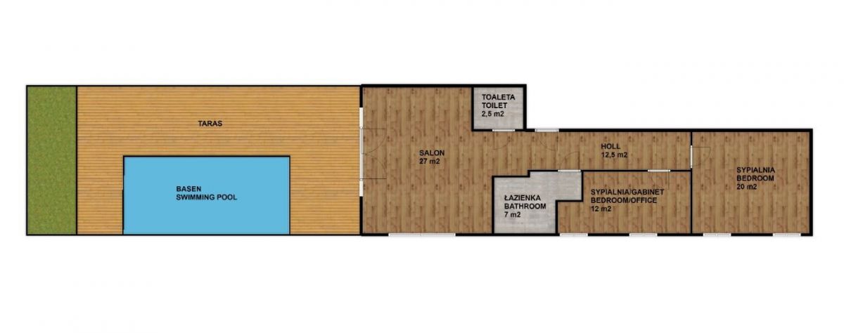
TARAS I BASEN
Do apartamentu przynależy taras z dużym prywatnym, podgrzewanym basenem. Taras ma powierzchnię ponad 100 m2 i rozpościera się z niego niepowtarzalny widok na Warszawę.

APARTAMENT
Jest to ustawne, funkcjonalne, 3-pokojowe mieszkanie, o powierzchni 85 m2.
Lokal posiada duże okna z ekspozycją na strony północno-zachodnią i południowo-wschodnią.
Mieszkanie składa się z:
- dużego salonu z aneksem kuchennym - 27 m2,
- ustawnej sypialni z dużą szafą w zabudowie - 20 m2,
- mniejszego pokoju idealnego na drugą sypialnię lub gabinet - 12 m2,
- łazienki z prysznicem - 7 m2,
- WC z umywalką i pralką - 5 m2,
- korytarza z ogromną ilością miejsca do składowania w postaci dużej szafy - 13 m2,
- prywatnego tarasu z ogrzewanym basenem - o powierzchni ponad 100 m2.

POTENCJAŁ POWIĘKSZENIA LOKALU
Istnieje potencjalna możliwość połączenia tego lokalu z drugim mieszkaniem za pomocą ogrodu zimowego (kwestia do formalnej weryfikacji).
W wariancie połączenia powstałoby mieszkanie o powierzchni ok. 170 m² (włącznie z ogrodem zimowym ok. 33 m²) z tarasem o powierzchni ok. 250 m2.

BUDYNEK I LOKALIZACJA
Apartament znajduje się na warszawskim Powiślu w inwestycji Solec Residence wybudowanej w 2017 roku.
Budynek znajduje się w jednej z najpiękniejszych i najbarwniejszych części Warszawy.
Sąsiedztwo Bulwarów Wiślanych i trzech miejskich parków gwarantuje wspaniałe możliwości rekreacji i wypoczynku.
Ilość znakomitych restauracji i kawiarni pozwoli niezwykle miło spędzać wolny czas.
W pobliżu również wiele instytucji finansowych i siedzib licznych firm, ministerstw i ambasad, muzeów i teatrów, butików i salonów!.

MIEJSCE PARKINGOWE
Do zakupu są dwa miejsca parkingowe w garażu podziemnym wraz z jednym miejscem na parkowanie jednośladu - łącznie za 300 000 PLN.

KOMÓRKA LOKATORSKA
Dodatkowo do zakupu komórka lokatorska za 100 000 PLN.

FINANSE
Cena za lokal: 5 100 000 PLN
Cena za 2 miejsca parkingowe: 300 000 PLN
Cena za komórkę lokatorską: 100 000 PLN.

Zapraszam do kontaktu w przypadku zainteresowania ofertą:
Kamil Nasiłowski
+48 577 511 589

Lokalizacja:

Skontaktuj się z agentem :
Joanna Kępska-Trzcińska

Telefon : 601 36 36 39

joanna@joannahouse.com.pl