Warszawa , ul. Stefana Baleya Ochota

Mieszkanie , 56,10 m2

840 000,00 PLN

Dane nieruchomości:

Numer oferty: 34964533914
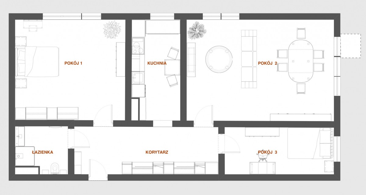
Powierzchnia: 56,10 m2
Liczba pokoi: 3
Piętro 4 /4
Rok budowy: 1976
Balkon: 1
Jasna kuchnia: Tak
Cena za m2: 14 973,26 PLN
Cena: 840 000,00 PLN

Opis nieruchomości:

Na sprzedaż mieszkanie o powierzchni 56,10 m² przy ul. Baleya 8. To propozycja dla tych, którzy szukają komfortowego lokum w doskonałej lokalizacji lub stabilnej inwestycji z możliwością wynajmu w całości bądź na pokoje.

Przestronne i funkcjonalne

- Trzy niezależne pokoje
- Kuchnia z oknem - możliwość otwarcia jej na salon, tworząc jasną, nowoczesną strefę dzienną
- Łazienka z prysznicem
- Piwnica (ok. 5 m²) w cenie

Stan mieszkania - do odświeżenia lub remontu, według własnej wizji i potrzeb

Dodatkowe informacje

- Spółdzielcza własność z księgą wieczystą
- Szybki internet dostępny od ręki
- Stabilny najem - mieszkanie było wynajmowane przez kilkanaście lat bez przestojów
- 4 piętro w budynku bez windy
- południowo-zachodnia ekspozycja

Świetna lokalizacja

- Blisko Warszawskiego Uniwersytetu Medycznego
- Dłuższy spacer zaprowadzi Cię do Pola Mokotowskiego, a krótszy - do okolicznych parków
- W pobliżu pełna infrastruktura: sklepy, kawiarnie, restauracje i komunikacja miejska

Cena: 840 000 zł

To mieszkanie daje duże możliwości aranżacyjne i świetnie wpisuje się w rytm życia w sercu Ochoty - funkcjonalne, dobrze skomunikowane i gotowe na nowego właściciela!


Zapraszam serdecznie!

*Oferta jest w trakcie przygotowywania, a załączony plan jest wyłącznie poglądowy*

Lokalizacja:

Skontaktuj się z agentem :
Joanna Kępska-Trzcińska

Telefon : 601 36 36 39

joanna@joannahouse.com.pl