Nadarzyn

Działka (Budowlana) , 1 400 m2

618 800,00 PLN

Dane nieruchomości:

Numer oferty: 34964520084
Powierzchnia: 1 400 m2
Cena za m2: 442,00 PLN
Cena: 618 800,00 PLN

Opis nieruchomości:

Działka 1400 m² Nadarzyn Zabudowa mieszkaniowa i usługowa

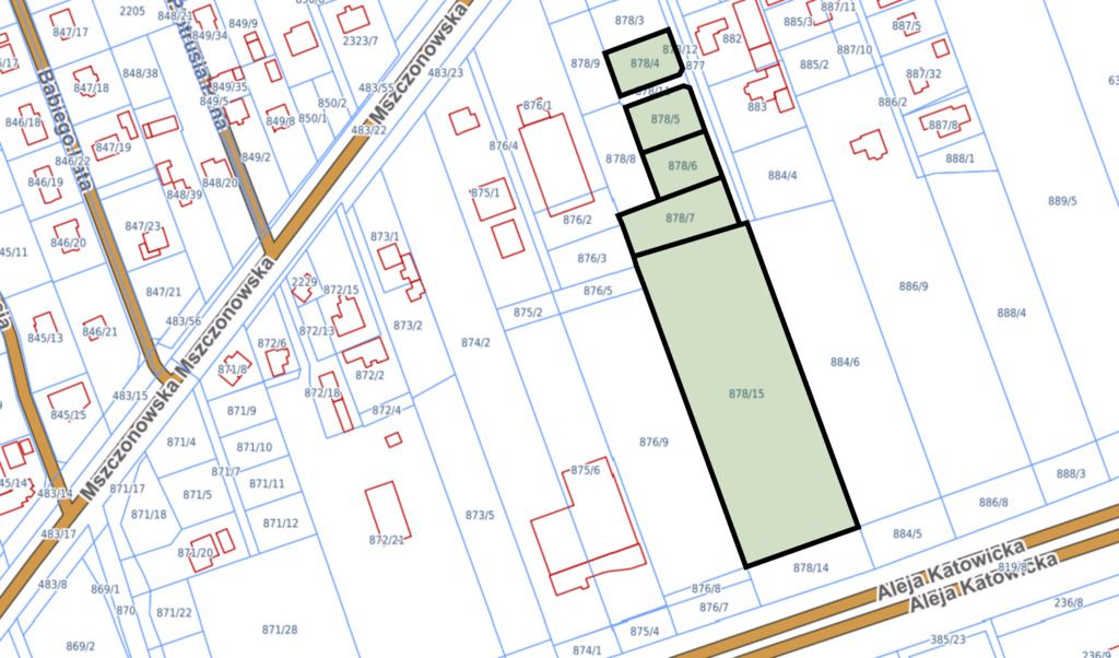
ELANDOM Nieruchomości prezentuje do sprzedaży działkę nr 878/7 o powierzchni 1400 m², położoną w Nadarzynie (gm. Nadarzyn, pow. pruszkowski), pomiędzy ul. Mszczonowską a Al. Katowicką.

Parametry działki:
  • powierzchnia: 1400 m²
  • wymiary: szer. 24,5 m dł. 57 m
  • ewidencja gruntów: Lzr-RIIIb
  • pełna własność, stan prawny uregulowany

Przeznaczenie wg MPZP (uchwała XXVIII/585/2004):
  • zabudowa mieszkaniowa jednorodzinna (wolnostojąca lub bliźniacza)
  • usługi towarzyszące (m.in. nieuciążliwe usługi lokalne)
  • budynki gospodarcze i garaże (do 60 m²)
  • infrastruktura techniczna, dojazdy, miejsca postojowe, zieleń

Plan zakazuje: stacji paliw, warsztatów samochodowych, masztów telefonii komórkowej, usług handlu pow. > 500 m².

Atuty oferty:
  • lokalizacja blisko głównych tras (S8, Al. Katowicka)
  • możliwość zakupu działki w pakiecie z sąsiednimi (878/4; 878/5; 878/6) – łączny, większy teren inwestycyjny
  • elastyczne przeznaczenie: dom jednorodzinny, działalność usługowa lub projekt mieszany

Zapraszamy do kontaktu i na prezentację działki.
Sprzedaż wyłącznie za gotówkę.

Lokalizacja:

Skontaktuj się z agentem :
Joanna Kępska-Trzcińska

Telefon : 601 36 36 39

joanna@joannahouse.com.pl